Il existe différents type de mouvement pour une porte commerciale, agricole ou industrielle. Lorsque l'on parle d'un mouvement Standard
, voici les espacements de dégagement nécessaires selon le type de ferronnerie :
| Type | Rayon de 12 po | Rayon de 15 po | 
| 2 po Commerciale Porte de 8 à 12 pi de haut | 12 po | n.d. | 
| 2 po Commerciale Porte de plus de 12 pi de haut et plus | 13 ½ po | 15 po | 
| 3 po Industrielle | n.d. | 15 po | 
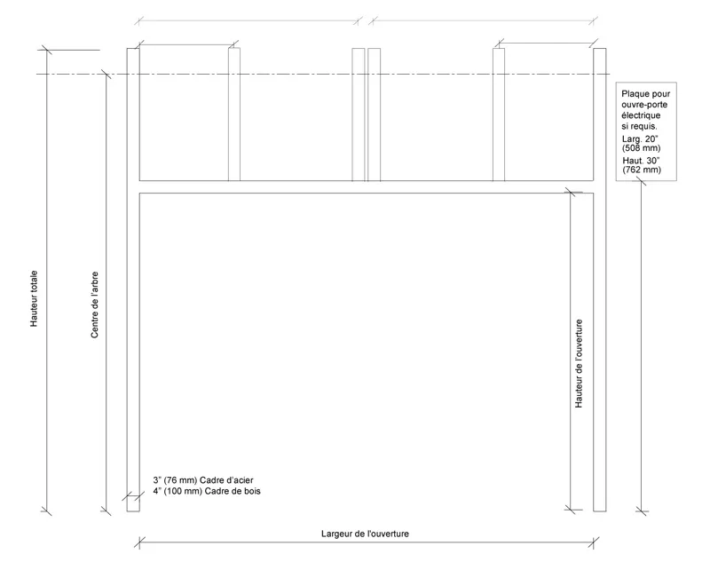
Note: si vous utilisez un ouvre-porte de garage électrique avec chariot (central), ajoutez 2 ½".
IMPORTANT : n'utilisez pas une ferronnerie Standard
 si l'espace de dégagement au-dessus de la porte est plus de 24 pouces (61 cm). Utilisez une ferronnerie de type Surélévation
. Il est important de dégager l’espace au-dessus de la porte de garage.
Par contre l'espace minimum requis pour l'utilisation d'une ferronnerie à dégagement réduit (Low headroom) :
| Type | Dégagement réduit arrière | Dégagement réduit avant | 
| 2 po Commerciale Porte de 8 à 12 pi de haut | 4 po | 8 po | 
| 2 po Commerciale Porte de plus de 12 pi de haut et plus | 4 po | 10 po | 
| 3 po Industrielle | 11 po | 13 po | 
Note: si vous utilisez un ouvre-porte de garage électrique avec chariot (central), ajoutez 2 ½".

